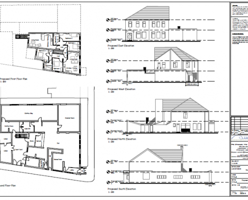
PROJECT – Rochester Road, Newport
LOCATION
Rochester Road, Newport
Commercial Conversion
2 X 2 Bed Apartments
Ground Floor Commercial
Acquisition Figures
Purchase Price: £100,000
Refurbishment: £80,000
Buying/Selling Costs: £5,000
Exit Figures
Resale Price: £285,000
Profit: £100,000
This property is situated in Newport, South Wales – In Planning


